ZJ80 注膠推拉門窗
ZJ80注膠推拉門窗產品說明
一、產品優點:
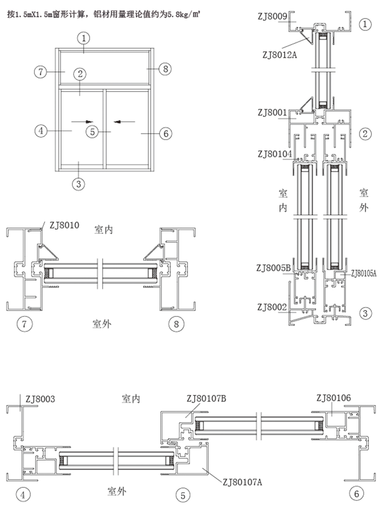
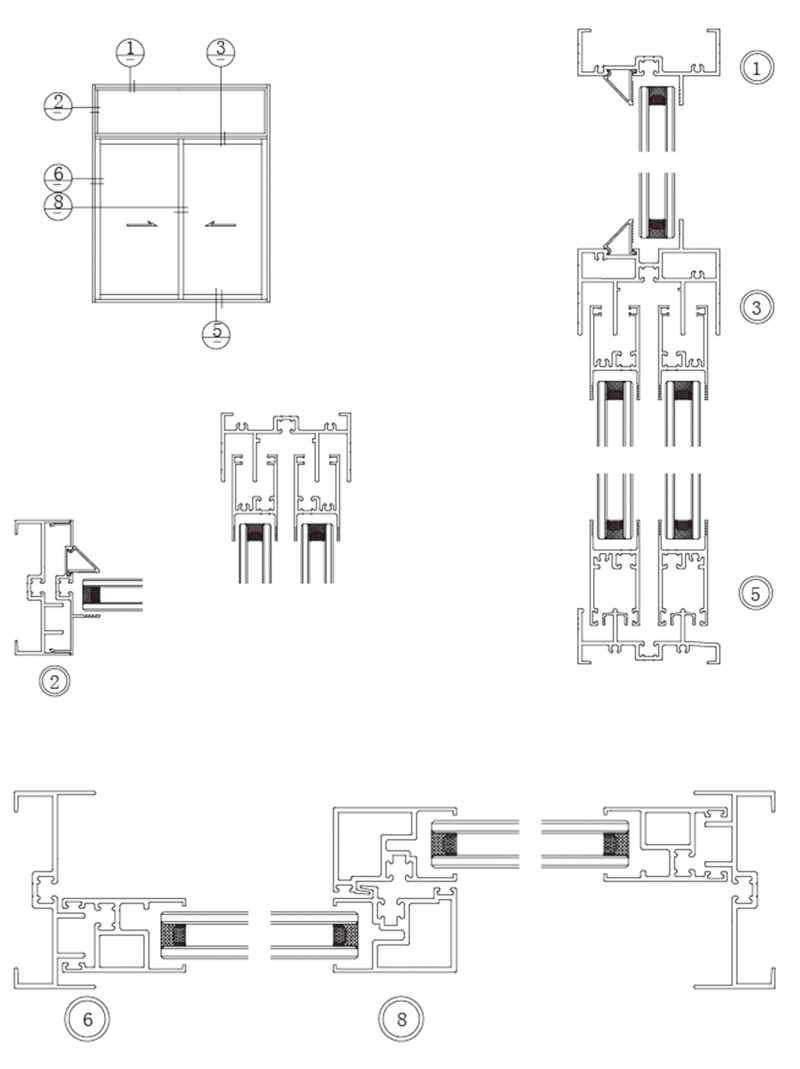
1.本產品外框寬度80mm,扇料采用簡介設計,線條簡單,美觀大方。框扇料均采用美式澆注聚氨脂高分子聚合物,形成隔熱橋,保溫隔熱性能優越,抗拉、抗剪強度高;適用于室內外溫差大,隔熱性能要求高的地區;
2.下軌道配套有高低軌、平軌,滿足客戶對通過性和氣密性、水密性的要求;
3.該產品可配裝月牙鎖、勾鎖和執手鎖,滿足客戶對不同五金件的要求;
4.成窗率高,經濟性好,性價比高;
5.有配套紗窗料、收口料,可做雙扇、四扇推拉;
6.本產品配有固定料及雙邊封料,可做上下固定或左右固定+開啟窗型。
二、安裝注意事項:
1.框料和扇料采用90°螺接;
2.高低軌需要配套內、外下方料,下單時候請注意;
3.室內外勾企不同,選配時需注意。
三、附注:
1.節點圖上的膠條、五金配件等配件示意圖僅供參考,具體以配件商提供的為準;
2.目錄上型材僅是此系列中的部分型材,還有很多型材可供選擇,如有需要,請與我司相關技術人員聯系;
3.型材表中米重僅為型材理論重量,不包含膠條重量,因型材表面處理及包裝方式不同,會對型材的實際重量產生差異。(注膠AA槽膠重約0.08kg/m,注膠BB槽膠重約0.12kg/m,注膠C槽膠重約0.14kg/m注膠DD槽膠重約0.19kg/m)
ZJ80 注膠推拉窗系列結構圖

ZJ80 注膠推拉門系列結構圖

ZJ80 注膠推拉窗系列簡圖

轉載請注明出處(ZJ80 注膠推拉門窗:/companynews/422)
相關文章